新築一戸建
高津区新作4丁目
- 所在地
- 川崎市高津区新作4丁目
- 交通
- JR南武線「武蔵新城」駅 徒歩13分
7,980万円(税込)
現地販売会
1月10日(Sat)〜1月12日(Mon) 10:00〜15:00
駅まで平坦地 安心の耐震等級3等級
OUTLINE
物件概要
| 所在地 | 川崎市高津区新作4丁目 | ||
|---|---|---|---|
| 交通1 | JR南武線「武蔵新城」駅 徒歩13分 | ||
| 交通2 | JR南武線「武蔵溝ノ口」駅 バス8分「新作」停歩3分 | ||
| 交通3 | JR南武線「武蔵溝ノ口」駅 徒歩19分 | ||
| 価格 | 7,980万円(税込) | ||
| 物件名称 | 高津区新作4丁目 | 物件番号 | 3198 |
| 物件種別 | 新築一戸建 | 販売棟数 | 全2棟 今回販売2棟 |
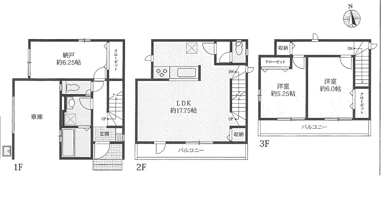
| 土地面積 | 64.23㎡(19.42坪) | 建物面積 | 105.15㎡(31.8坪) |
| 間取 | 3LDK | 建物構造 | 木造 3階建 |
| 完成 | 2026年4月完成予定 | 施工会社 | 株式会社タクトホーム |
| 接道状況 | 南 6.00M | 都市計画 | 市街化区域 |
| 地目 | 宅地 | 用途地域 | 第一種中高層住専 |
| 建ぺい率 | 60% | 容積率 | 200% |
| 建築確認番号 | 第HPA-25-10229-1号 | 現況 | 更地 |
| 駐車場 | 1台 | 小学区 | 川崎市立末長小学校 ※1 |
| 中学区 | 川崎市高津区立橘中学校 ※1 | 管理番号 | 202512041700 |
| 設備 | 都市ガス・公営水道・本下水 | ||
| こだわり項目 | 安心の耐震等級3等級 住宅性能表示取得物件 | ||
※1 実際の通学区域とは異なる場合がありますので必ず各学校毎の通学区域住所をご確認ください。
INQUIRY
資料請求
- <WEBからお問い合わせ>
- <お電話でのお問い合わせ>
-
044-667-1192- [受付時間]AM10:00~PM7:00
- [定休日]火曜日・水曜日
※定休日(火曜日・水曜日・年末年始等)は
ご連絡が遅くなる場合もございます。


