新築一戸建
フォレストタウン向ケ丘10号棟
- 所在地
- 川崎市高津区向ケ丘
- 交通
- 東急田園都市線「宮崎台」駅 徒歩17分
6,580万円(税込)
平坦地2階建て フォレストタウン向ヶ丘
OUTLINE
物件概要
| 所在地 | 川崎市高津区向ケ丘 | ||
|---|---|---|---|
| 交通 | 東急田園都市線「宮崎台」駅 徒歩17分 | ||
| 価格 | 6,580万円(税込) | ||
| 物件名称 | フォレストタウン向ケ丘10号棟 | 物件番号 | 3179 |
| 物件種別 | 新築一戸建 | 販売棟数 | 全4棟 今回販売2棟 |
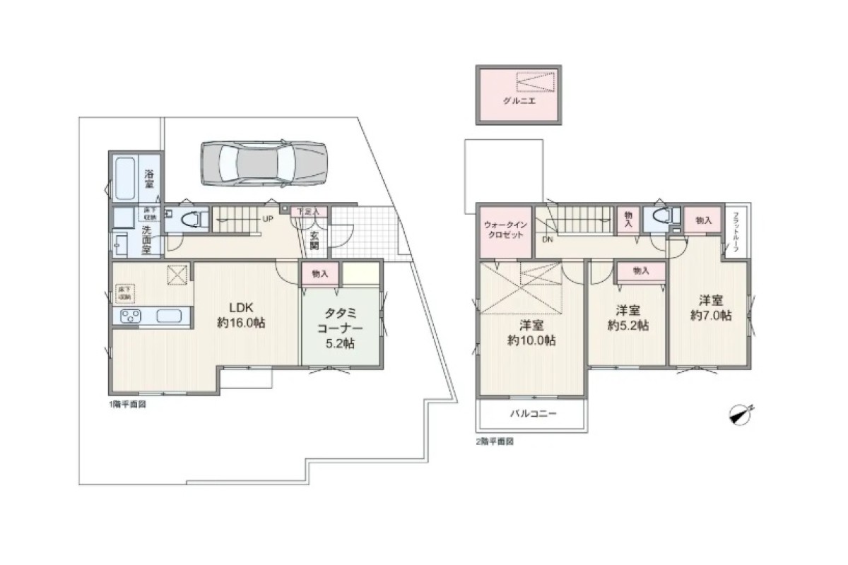
| 土地面積 | 134.37㎡(40.64坪) | 建物面積 | 104.33㎡(31.55坪) |
| 間取 | 3LDK ( +タタミコーナー) |
建物構造 | 木造 2階建 |
| 完成 | 2026年3月完成予定 | 施工会社 | 株式会社成建 |
| 都市計画 | 市街化区域 | 用途地域 | 第一種低層住専 |
| 建ぺい率 | 50% | 容積率 | 80% |
| 建築確認番号 | 第KS125-3820-50354号 | 駐車場 | あり |
| 取引態様 | 媒介 | 小学区 | 川崎市立上作延小学校 ※1 |
| 中学区 | 川崎市高津区立向丘中学校 ※1 | ||
| 設備 | 東京ガス、電力(東京ガス)、公営水道、本下水 | ||
| 周辺アクセス | 南原小学校 約180m/向丘中学校 約960m/保育園きのね 約700m/ライフ宮崎台店 約1,050m/ローソン 約240m/虎の門病院分院 約1,280m | ||
※1 実際の通学区域とは異なる場合がありますので必ず各学校毎の通学区域住所をご確認ください。
INQUIRY
資料請求
- <WEBからお問い合わせ>
- <お電話でのお問い合わせ>
-
044-667-1192- [受付時間]AM10:00~PM7:00
- [定休日]火曜日・水曜日
※定休日(火曜日・水曜日・年末年始等)は
ご連絡が遅くなる場合もございます。




