新築一戸建
フォレストタウン西野川5号棟
- 所在地
- 川崎市宮前区西野川3丁目
- 交通
- 東急田園都市線「鷺沼」駅 バス15分停歩7分
4,380万円(税込)
フォレストタウン西野川6号棟 平坦地 太陽光パネル付 耐震等級3等級
OUTLINE
物件概要
| 所在地 | 川崎市宮前区西野川3丁目 | ||
|---|---|---|---|
| 交通 | 東急田園都市線「鷺沼」駅 バス15分停歩7分 | ||
| 価格 | 4,380万円(税込) | ||
| 物件名称 | フォレストタウン西野川5号棟 | 物件番号 | 3048 |
| 物件種別 | 新築一戸建 | 販売棟数 | 全7棟 今回販売1棟 |
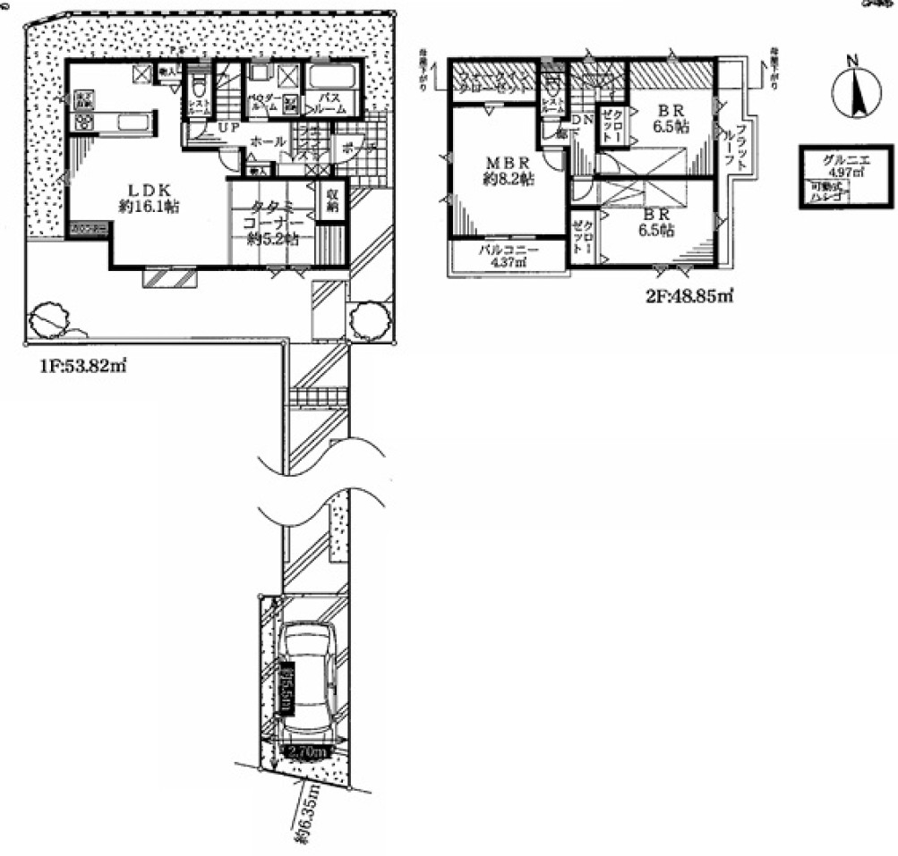
| 土地面積 | 152.56㎡(46.14坪) | 建物面積 | 102.67㎡(31.05坪) |
| 間取 | 3SLDK | 建物構造 | 木造 2階建 |
| 完成 | 2024年12月完成予定 | 施工会社 | 株式会社成建 |
| 接道状況 | 南 6.00M | 都市計画 | 市街化区域 |
| 地目 | 宅地 | 用途地域 | 第一種低層住専 |
| 建ぺい率 | 40% | 容積率 | 80% |
| 建築確認番号 | 第KS125-3820-50163 | 現況 | 建築中 |
| 駐車場 | 1台 | 取引態様 | 媒介 |
| 小学区 | 川崎市立野川小学校 ※1 | 中学区 | 川崎市宮前区立野川中学校 ※1 |
| 管理番号 | 202510051900 | ||
| 設備 | LD部分ガス温水式床暖房付 食器洗い乾燥機付 ビルトイン浄水器 都市ガス・上水道・下水道・電力 耐震等級3等級 太陽光パネル付 | ||
| 備考 | 株式会社成建 建物保証10年付・建物20年保証制度有・アフターサービス付・建物定期点検付・24時間受け付けサービス有・SAMシステム(トラブル対応)・住宅再保証システム有 | ||
※1 実際の通学区域とは異なる場合がありますので必ず各学校毎の通学区域住所をご確認ください。
INQUIRY
資料請求
- <WEBからお問い合わせ>
- <お電話でのお問い合わせ>
-
044-667-1192- [受付時間]AM10:00~PM7:00
- [定休日]火曜日・水曜日
※定休日(火曜日・水曜日・年末年始等)は
ご連絡が遅くなる場合もございます。





